I DISPOSITIVI DI VINCOLO ASSIALE IN LEGHE A MEMORIA DI FORMA
SMAD's Shape Memory Alloy Devices
Tecnologie innovative per la conservazione dell'architettura

LA LEGA A MEMORIA DI FORMA PER REALIZZARE DISPOSITIVI DI VINCOLO (TIRANTI) ANTISIMICO DELLE FACCIATE DELLE CHIESE
Si tratta di una lega nichel-titanio che possiede la caratteristica di assorbire, e dissipare al suo interno, l’energia sismica che colpisce l’edificio; tale comportamento è profondamente diverso da quello dell’acciaio, che invece accumula e restituisce violentemente l’energia che gli viene trasmessa dal sisma, qualora non superi il campo elastico, causando gravi danni che possono giungere al collasso.
Il moto degli atomi nichel-titanio che generano tale fenomeno non causa la rottura dei reticoli cristallini come avviene invece nella deformazione dell’acciaio quando supera il campo elastico, che si deforma quindi in modo irreversibile ed il tirante in acciaio diventa del tutto inefficace.
Al cessare della sollecitazione sismica, la lega a memoria di forma riprende la forma iniziale senza aver subito danni alla sua struttura cristallina; questo fenomeno avviene in decimi di secondo, quindi la lega a memoria di forma riesce a fare fronte a scosse sismiche che si ripetono anche nel brevissimo periodo.
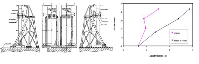
Prove su tavola vibrante condotte da ENEA (Agenzia nazionale per le nuove tecnologie, l’energia e lo sviluppo sostenibile) su modelli di murature hanno dimostrato che tiranti realizzati con la lega a memoria di forma riducono l’accelerazione impedendo il collasso per forze ortogonali al piano anche della parte superiore della muratura, assimilata la timpano delle chiese; le murature sono in grado di resistere a forze superiori del 50% di quelle che causano il collasso di facciate con timpano rinforzate con i classici tiranti metallici.

Il diagramma riporta i valori massimi delle accelerazioni che hanno fatto crollare il muro con i tioranti in accaio, colore blu, mentre ha perfettamente resistito il muro con i itranti ia lega a amemoria di forma, colre rosso.
Gli SMADs vengono utilizzati per mitigare una delle maggiori cause di vulnerabilità delle chiese, che consiste nel ribaltamento della facciata causata da forze ortogonali al piano.

Con gli SMADs abbiamo vincolato, per il Giubileo del 2000, la facciata della cattedrale San Feliciano di Foligno (Umbria), che ha perfettamente resistito ai numerosi terremoti che si sono succeduti in zona dopo il 2000.
